3 500 000 Р 43 220 $ или 37 000

Информация о квартире

53 м2
Площадь
29 м2
Жилая
8 м2
Кухня
2
Комнаты
4
Этаж
4
Этажность

Дополнительная информация

Тип дома
панельный
Развернуть
Агент
+7 (987) 735-47-12
Начать чат с агентом

2-к кв. Чувашия, Чебоксарский муниципальный округ, пос. Сюктерка ул. ...

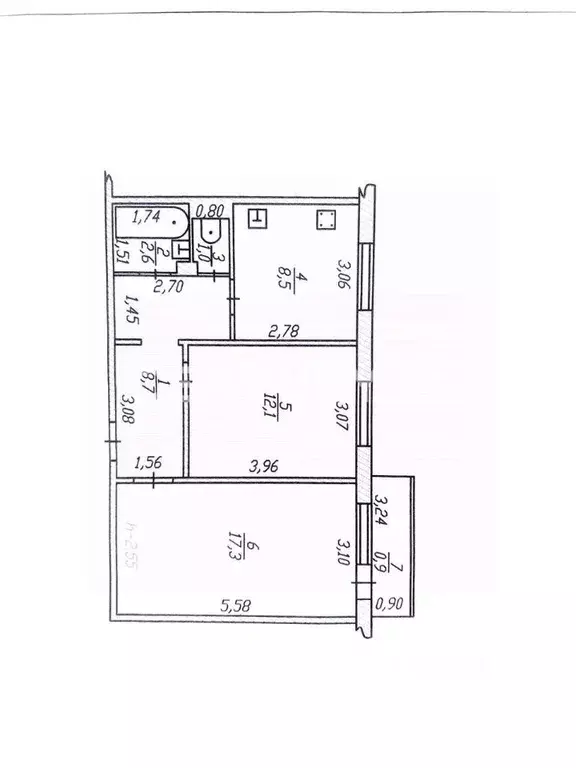
При покупке этой квартире возможна ставка по ипотеке 13.99 Хотите квартиру в тихом, живописном месте с чистым воздухом, рядом с р.Волгой и в 20 минутах от города?Тогда вам очень повезло ПРОДАЕТСЯ:Просторная 2-х комнатная квартира в пос.Сюктерка на 4 этаже 4 этажного добротного панельного дома. Чистый подъезд, доброжелательные соседи.Планировка:общая площадь 53.1 кв.м.кухня 8.5 кв.м.комната 17.3/12.1 кв.м.прихожая 8.7 кв.м.туалет 1.0 кв.м.ванная 2.6 кв.м.Преимущества квартиры:дом панельный, 1976 г. постройки.удобная планировка. пластиковые окна.светлая и уютная квартира.стены и полы ровные.раздельный сан.узел.солнечная сторона. есть свой огород.Квартира теплая, просторная кухня. Часть мебели и техники остается.Развитая инфраструктура: представляет собой тихое спокойной место в 20 мин от города рядом Санаторно-курортный комплекс Волжанка, Вурман-Сюктерская средняя школа , МБДОУ Звездочка, магазины.Рядом находятся : Вурманкасы, Хыркасы.Курсируют несколько маршрутов автобусов.Все документы готовы к продаже:один взрослый собственник,обременений и запретов на квартире НЕТ,более 5 лет в собственности, вся сумма в договоре, возможен быстрый выход на сделку.ЗВОНИТЕ прямо сейчас,пока квартиру вашей мечты не купил кто-то другой Оперативный показ в день звонка Арт.

Читать полностью

    Для того, чтобы купить двухкомнатную квартиру по адресу: Сюктерка, ул. Главная, 1, позвоните по телефону +7 (987) 735-47-12. Торопитесь! Объявление №30091016892 о продаже двухкомнатной квартиры опубликовано 13 октября 2025.

    Позвонить Написать
    3 500 000 Р43 220 $ или 37 000
    Агент
    +7 (987) 735-47-12
    Начать чат с агентом
    Похожие предложения
    1-к кв. Чувашия, Чебоксары просп. Мира, 36 (31.0 м) - Фото 1
    1-к кв. Чувашия, Чебоксары просп. Мира, 36 (31.0 м) - Фото 2
    1-комнатная квартира, общая площадь 31м², жилая 18м², кухня 5м²

    Продается уютная однокомнатная квартира в Чебоксарах по адресу: проспект Мира, 36. Общая площадь — 31 кв. м, жилая площадь — 18 кв. м, кухня — 5.6 кв. м. Квартира расположена на 5 этаже 5-этажного панельного дома, построенного в 1969 году. Высота потолков...
    • 31 м²
    • 1-ком
    • 5/5 эт.
    • панельный
    3 400 000 Р
    Агент
    +7 (919) Показать номер
    Посмотреть контакты
    3-к кв. Чувашия, Новочебоксарск Советская ул., 28 (56.5 м) - Фото 1
    3-к кв. Чувашия, Новочебоксарск Советская ул., 28 (56.5 м) - Фото 2
    3-комнатная квартира, общая площадь 56м², жилая 38м², кухня 5м²

    Продается 3- комнатная квартира, расположенная в тихом, спокойном районе с развитой инфраструктурой, по адресу: ул. Советская д.28, на 2/5 этаже панельного дома, общей площадью 56,5 м2.Чистый подъезд, хорошие соседи. Во дворе оборудована детская площадка,...
    • 56 м²
    • 3-ком
    • 2/5 эт.
    • панельный
    3 500 000 Р
    Агент
    +7 (917) Показать номер
    Посмотреть контакты
    2-к кв. Чувашия, Чебоксары ул. Космонавта Андрияна Григорьевича ... - Фото 1
    2-к кв. Чувашия, Чебоксары ул. Космонавта Андрияна Григорьевича ... - Фото 2
    2-комнатная квартира, общая площадь 43м², жилая 26м², кухня 5м²

    Продается квартира с изолированными комнатами, балкон-витражное остекление, мет.дверь, колонка, в санузле-панели, рядом: 3 школы (23, 30 и 33), садики, магазины, остановки. 1 взрослый собственник, без обременения.
    • 43 м²
    • 2-ком
    • 4/5 эт.
    • кирпичный
    3 550 000 Р
    Агент
    +7 (917) Показать номер
    Посмотреть контакты
    1-к кв. Чувашия, Чебоксары городской округ, Сосновка пгт ул. ... - Фото 1
    1-к кв. Чувашия, Чебоксары городской округ, Сосновка пгт ул. ... - Фото 2
    1-комнатная квартира, общая площадь 35м², жилая 17м², кухня 7м²

    Продается уютная однокомнатная квартира в Санатории Чувашия, из окон открывается вид на Сосновый бор. Квартира с дизайнерским ремонтом, что делает пространство стильным и современным. Вся необходимая мебель и техника уже есть, поэтому вы сможете сразу...
    • 35 м²
    • 1-ком
    • 4/5 эт.
    • панельный
    3 550 000 Р
    Агент
    +7 (917) Показать номер
    Посмотреть контакты
    2-к кв. Чувашия, Канаш Комсомольская ул., 14А (48.9 м) - Фото 1
    2-к кв. Чувашия, Канаш Комсомольская ул., 14А (48.9 м) - Фото 2
    2-комнатная квартира, общая площадь 48м², жилая 31м², кухня 12м²

    Продаётся уютная 2-комнатная квартира с большой кухней на первом этаже современного дома.Эта квартира — идеальный выбор для тех, кто ценит комфорт и удобство.Внутри вы найдёте просторную светлую кухню, которая станет настоящим сердцем вашего дома. Просторные...
    • 48 м²
    • 2-ком
    • 1/4 эт.
    • кирпичный
    3 470 000 Р
    Агент
    +7 (987) Показать номер
    Посмотреть контакты

    Не нашли подходящего объявления?

    Оставьте заявку, и наши риэлторы подберут квартиру в районе Сюктерки

    (0)