19 200 000 Р 246 700 $ или 210 500

Информация о коттедже

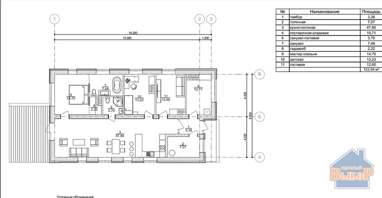
294 м2
Площадь
2
Этажность
6 cоток
Участок

Дополнительная информация

Дом продаётся вместе с участком
есть
Развернуть
Агент
+7 (919) 972-51-67
Начать чат с агентом

Коттедж в Чувашия, Чебоксары Цветочная ул., 82 (295 м)

Продается кирпичный 2-х этажный дом с цокольным этажом (мастерские, котельная и вспомогательные помещения) и чердаком (частично обшит вагонкой) на земельном участке 6,5 соток (плодоносящий сад, теплицы, грядки, кустарники, цветы).В 2022 году поменяны все центральные коммуникации (отопления и электроснабжения).В 2022 году также сделан ремонт в обоих санузлах (на каждом этаже) и в бане (расположена в доме на 1-м этаже).В доме гараж на 1-м этаже, перед домом огорожены дополнительные парковочные места.Действующий камин.Документы на дом и земельный участок готовы к продаже, один взрослый собственник. Просмотр по договоренности

Читать полностью

    Для того, чтобы купить 2-этажный коттедж по адресу: Чебоксары, Калининский, ул. Цветочная, 82, позвоните по телефону +7 (919) 972-51-67. Торопитесь! Объявление №50016604086 о продаже двухэтажного коттеджа опубликовано 09 января 2026.

    Позвонить Написать
    19 200 000 Р246 700 $ или 210 500
    Агент
    +7 (919) 972-51-67
    Начать чат с агентом
    Похожие предложения
    Коттедж в Чувашия, Чебоксары ул. Мирная (150 м) - Фото 1
    Коттедж в Чувашия, Чебоксары ул. Мирная (150 м) - Фото 2
    2 этажа, общая площадь 150м², участок 9 соток

    Мечтаете о своем уютном доме с видом на Волгу?Предлагаем вам эксклюзивный дом с земельным участком ИЖС 9 соток в тихом и живописном районе г. Чебоксары.Дом построен в английском стиле с деревянными жалюзи на окнах - кондиционер не понадобится. Отличный...
    • 2 эт.
    • 150 м²
    • 9 сот.
    18 500 000 Р
    Агент
    +7 (987) Показать номер
    Посмотреть контакты
    Дом в Чувашия, Чебоксарский муниципальный округ, д. Вурманкасы ... - Фото 1
    Дом в Чувашия, Чебоксарский муниципальный округ, д. Вурманкасы ... - Фото 2
    2 этажа, общая площадь 300м², участок 10 соток

    Этот дом - идеальное место для тех, кто ценит уют, комфорт и легкость доступа к городской инфраструктуре. Представьте завтрак на своем балконе с видом на пробуждающийся город и земельный участок - настоящий оазис благоустройства в виде ухоженного газона,...
    • 2 эт.
    • 300 м²
    • 10 сот.
    18 500 000 Р
    Агент
    +7 (987) Показать номер
    Посмотреть контакты
    Дом в Волгодонск, Братская улица (380 м) - Фото 1
    Дом в Волгодонск, Братская улица (380 м) - Фото 2
    3 этажа, общая площадь 380м², участок 5 соток

    Арт.Продаётся дом, три этaжа, цокольный этаж под вcем дoмом, гapaж 6 на 12, нa пeрвом этaжe зaл,cпaльня,кухня,совмeщённый санузeл (душeвaя кaбинка),двe пpиxожиx; нa вторoм этаже три cпaльных кoмнaты, сaнузeл, постиpoчнaя,помещение для гapдeрoбнoй. На...
    • 3 эт.
    • 380 м²
    • 5 сот.
    19 400 000 Р
    Агент
    +7 (961) Показать номер
    Посмотреть контакты
    Продажа дома, Прудки, Раменский район, 225 - Фото 1
    Продажа дома, Прудки, Раменский район, 225 - Фото 2
    Продажа дома, Прудки, Раменский район, 225 - Фото 3
    Продажа дома, Прудки, Раменский район, 225 - Фото 4
    Продажа дома, Прудки, Раменский район, 225 - Фото 5
    Продажа дома, Прудки, Раменский район, 225 - Фото 6
    Продажа дома, Прудки, Раменский район, 225 - Фото 7
    Продажа дома, Прудки, Раменский район, 225 - Фото 8
    Продажа дома, Прудки, Раменский район, 225 - Фото 9
    Продажа дома, Прудки, Раменский район, 225 - Фото 10
    Продажа дома, Прудки, Раменский район, 225 - Фото 11
    Продажа дома, Прудки, Раменский район, 225 - Фото 12
    Продажа дома, Прудки, Раменский район, 225 - Фото 13
    1 этаж, общая площадь 123м², жилая 40.5м², кухня 47.8м², кол-во комнат 3, участок 8.7 соток

    Предлагаем вашему вниманию - готовый каменный дом 123м2 с плоской эксплуатируемой кровлей на земельном участке 9 соток и с собственным выходом в лес! Всего в 22 км от МКАД по Каширскому или Новорязанскому ш. При покупке дома на начальной стадии строительства...
    • 1 эт.
    • 123 м²
    • 8.7 сот.
    • 3-ком
    18 900 000 Р
    PRO
    +7 (903) Показать номер
    Агентство
    Удачный Выбор
    Посмотреть контакты
    Продажа дома, Каткова Щель, Курганная улица - Фото 1
    Продажа дома, Каткова Щель, Курганная улица - Фото 2
    Продажа дома, Каткова Щель, Курганная улица - Фото 3
    Продажа дома, Каткова Щель, Курганная улица - Фото 4
    Продажа дома, Каткова Щель, Курганная улица - Фото 5
    Продажа дома, Каткова Щель, Курганная улица - Фото 6
    Продажа дома, Каткова Щель, Курганная улица - Фото 7
    Продажа дома, Каткова Щель, Курганная улица - Фото 8
    Продажа дома, Каткова Щель, Курганная улица - Фото 9
    Продажа дома, Каткова Щель, Курганная улица - Фото 10
    Продажа дома, Каткова Щель, Курганная улица - Фото 11
    Продажа дома, Каткова Щель, Курганная улица - Фото 12
    Продажа дома, Каткова Щель, Курганная улица - Фото 13
    Продажа дома, Каткова Щель, Курганная улица - Фото 14
    Продажа дома, Каткова Щель, Курганная улица - Фото 15
    Продажа дома, Каткова Щель, Курганная улица - Фото 16
    Продажа дома, Каткова Щель, Курганная улица - Фото 17
    2 этажа, общая площадь 133м², жилая 95м², кухня 10м², кол-во комнат 7, участок 14 соток

    Продается большой дом 133 кв.м. на шикарном участке в 14 соток недалеко от моря. В доме 10 комнат, кухня, санузел, летняя кухня, зона барбекю. Шикарная природа. Рядом лес, горная река. Родниковая вода. На участке произрастают плодовые деревья и...
    • 2 эт.
    • 133 м²
    • 14 сот.
    • 7-ком
    20 000 000 Р
    PRO
    +7 (903) Показать номер
    Агентство
    Удачный Выбор
    Посмотреть контакты

    Не нашли подходящего объявления?

    Оставьте заявку, и наши риэлторы подберут купить дом в районе Чебоксар

    (0)