Реализация объекта недвижимости приостановлена

Информация о квартире

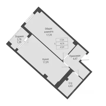
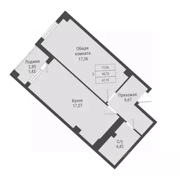
61.0 м2
Площадь
27.0 м2
Жилая
13.0 м2
Кухня
2
Комнаты
6
Этаж
9
Этажность
Развернуть

2-к кв. Чувашия, Чебоксары ул. Энергетиков, поз8 (61.05 м)

ПОЗИЦИЯ 8Многоквартирный жилой дом переменной этажности (в доме 9 этажей).СРОК СДАЧИ - III квартал 2027 года.Дом монолитно-каркасный;Фасад облицован керамогранитными плитами;Отопление - централизованное (с установкой поквартирных счетчиков учета тепла);Места общего пользования с дизайнерской отделкой;В подъездах - комнаты для хранения велосипедов (индивидуальные кладовые, которые можно приобрести), на первом этаже - колясочная.

Читать полностью

    Реализация объекта недвижимости приостановлена

    Не нашли подходящего объявления?

    Оставьте заявку, и наши риэлторы подберут квартиру в новостройке в районе Чебоксар

    (0)