Реализация объекта недвижимости приостановлена

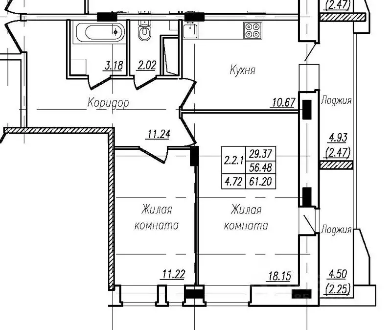
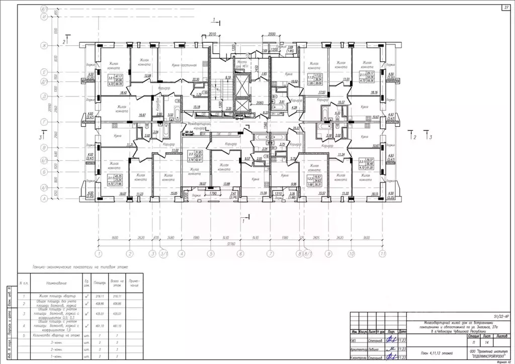
Информация о квартире

61.0 м2
Площадь
2
Комнаты
11
Этаж
17
Этажность
Развернуть

2-к кв. Чувашия, Чебоксары ул. Фридриха Энгельса, 27А (61.2 м)

Мы создали нечто особенное — Николаевский парк . Это новый формат жилой среды для тех, кто хочет жить в центре событий с комфортом. Николаевский парк — это дом с собственным зелёным парком под окном в самом центре города, где вы всегда будете в безопасности. Здесь есть современные детские и спортивные площадки с обрезиненным покрытием, огороженная территория, видеонаблюдение и многое другое.Жилой комплекс обращает внимание на каждую деталь. Тщательно подобранные оттенки и фактура кирпича в сочетании с современными технологиями придают зданию неповторимый облик. Увеличенные оконные проёмы с теплосберегающими стеклопакетами обеспечивают больше света в квартире и позволяют экономить на платежах за ЖКХ.Жить в Николаевском парке — значит брать от города лучшее: комфортную атмосферу, расположение в центре и всё необходимое рядом.

Читать полностью

    Реализация объекта недвижимости приостановлена

    Не нашли подходящего объявления?

    Оставьте заявку, и наши риэлторы подберут квартиру в новостройке в районе Чебоксар

    (0)