3 978 000 Р 51 480 $ или 44 350

Информация о квартире

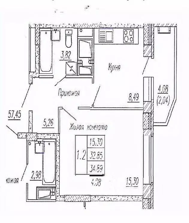
42 м2
Площадь
16 м2
Жилая
13 м2
Кухня
1
Комната
5
Этаж
16
Этажность
Развернуть
Агент
+7 (919) 972-64-97
Начать чат с агентом

1-к кв. Чувашия, Чебоксары проезд Гремячевский, поз2 (42.7 м)

Квартира в черновой отделке, жилой комплекс, расположенный рядом с Волгой, привлекает внимание своим уникальным расположением и естественной красотой окружающей среды. Утро начинается с мелодичного пения птиц, наполняющего пространство свежестью и спокойствием.

Читать полностью
    Позвонить Написать
    3 978 000 Р51 480 $ или 44 350
    Агент
    +7 (919) 972-64-97
    Начать чат с агентом
    Похожие предложения
    1-к кв. Чувашия, Чебоксары ул. Ленинского Комсомола, поз3 (37.0 м) - Фото 1
    1-к кв. Чувашия, Чебоксары ул. Ленинского Комсомола, поз3 (37.0 м) - Фото 2
    1-комнатная квартира, общая площадь 37м², жилая 15м², кухня 8м²

    Объект 7738. ПО СЕМЕЙНОЙ ИПОТЕКЕ НЕ ПРОХОДИТ Продается 1-комнатная квартира в строящемся доме по ул. Ленинского Комсомола, поз.3.Удобная планировка, 1 взрослый собственникЗвоните, на все вопросы отвечу. Надежда.
    • 37 м²
    • 1-ком
    • 12/24 эт.
    • кирпичный
    4 100 000 Р
    Агент
    +7 (919) Показать номер
    Посмотреть контакты
    1-к кв. Чувашия, Новочебоксарск Восточная ул., 1к2 (44.1 м) - Фото 1
    1-к кв. Чувашия, Новочебоксарск Восточная ул., 1к2 (44.1 м) - Фото 2
    1-комнатная квартира, общая площадь 44м², жилая 16м², кухня 12м²

    Продаётся 1-комнатная квартира в строящемся доме (поз.2 блок-секции А,Б), срок сдачи: II-кв. 2026, общей площадью 44.1 кв.м., на 1 этаже. Микрорайон Светлый представляет собой четыре каркасно-монолитных жилых здания переменной этажности 9-16 этажей.Застройщиком...
    • 44 м²
    • 1-ком
    • 1/14 эт.
    3 938 200 Р
    Агент
    +7 (930) Показать номер
    Посмотреть контакты
    1-к кв. Чувашия, Новочебоксарск Восточная ул., 1к2 (44.3 м) - Фото 1
    1-к кв. Чувашия, Новочебоксарск Восточная ул., 1к2 (44.3 м) - Фото 2
    1-комнатная квартира, общая площадь 44м², жилая 19м², кухня 10м²

    Продаётся 1-комнатная квартира в строящемся доме (поз.2 блок-секции А,Б), срок сдачи: II-кв. 2026, общей площадью 44.3 кв.м., на 1 этаже. Микрорайон Светлый представляет собой четыре каркасно-монолитных жилых здания переменной этажности 9-16 этажей.Застройщиком...
    • 44 м²
    • 1-ком
    • 1/14 эт.
    3 947 900 Р
    Агент
    +7 (930) Показать номер
    Посмотреть контакты
    1-к кв. Чувашия, Новочебоксарск Восточная ул., 1к2 (44.3 м) - Фото 1
    1-к кв. Чувашия, Новочебоксарск Восточная ул., 1к2 (44.3 м) - Фото 2
    1-комнатная квартира, общая площадь 44м², жилая 19м², кухня 10м²

    Продаётся 1-комнатная квартира в строящемся доме (поз.2 блок-секции А,Б), срок сдачи: II-кв. 2026, общей площадью 44.3 кв.м., на 12 этаже. Микрорайон Светлый представляет собой четыре каркасно-монолитных жилых здания переменной этажности 9-16 этажей.Застройщиком...
    • 44 м²
    • 1-ком
    • 12/14 эт.
    3 918 800 Р
    Агент
    +7 (930) Показать номер
    Посмотреть контакты
    1-к кв. Чувашия, Новочебоксарск Восточная ул., 1к2 (44.3 м) - Фото 1
    1-к кв. Чувашия, Новочебоксарск Восточная ул., 1к2 (44.3 м) - Фото 2
    1-комнатная квартира, общая площадь 44м², жилая 19м², кухня 10м²

    Продаётся 1-комнатная квартира в строящемся доме (поз.2 блок-секции А,Б), срок сдачи: II-кв. 2026, общей площадью 44.3 кв.м., на 11 этаже. Микрорайон Светлый представляет собой четыре каркасно-монолитных жилых здания переменной этажности 9-16 этажей.Застройщиком...
    • 44 м²
    • 1-ком
    • 11/14 эт.
    3 918 800 Р
    Агент
    +7 (930) Показать номер
    Посмотреть контакты

    Не нашли подходящего объявления?

    Оставьте заявку, и наши риэлторы подберут квартиру в новостройке в районе Чебоксар

    (0)