Россия, Чувашская Республика - Чувашия, Чебоксары, улица Академика РАН Х.М. Миначева, 17
7 150 000 Р 90 600 $ или 78 260

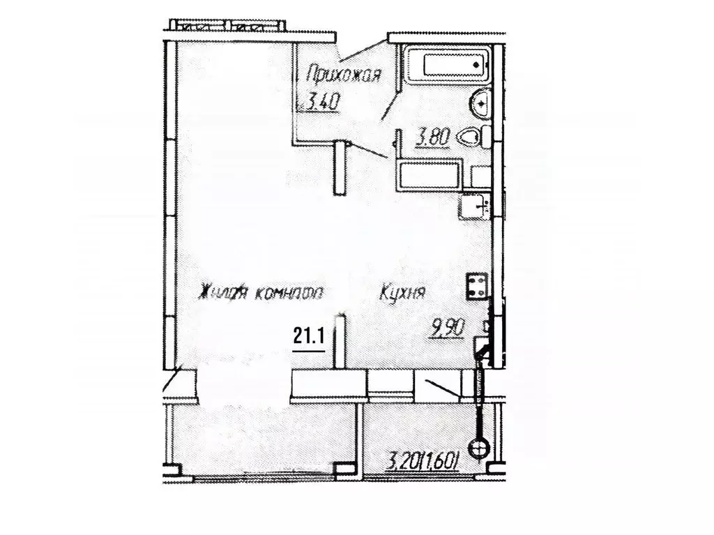
Информация о квартире

41 м2
Площадь
21 м2
Жилая
9 м2
Кухня
1
Комната
7
Этаж
14
Этажность
Развернуть
Агент
+7 (937) 955-56-88
Начать чат с агентом

1-комнатная квартира: Чебоксары, улица Академика РАН Х.М. Миначева, 17 ...

Возможна ипотека под 12.99 на весь срок ОТЛИЧНОЕ ПРЕДЛОЖЕНИЕ Просторная однокомнатная квартира в тихом и спокойном микрорайоне Университет с дизайнерским ремонтом. Планировка:Общая площадь - 38.7 м2, с лоджией - 41.9 м2Комната - 21.1 м2Кухня - 9.90 м2Санузел - 3.80 м2Прихожая - 3.40 м2Лоджия - 3.2 м2Высота потолков - 2.5 м Преимущества: Полностью кирпичный 10-ти/16-ти этажный дом 2017 года постройкиКачественный дизайнерский ремонт, продумано все до мелочей.Кухонный гарнитур из премиальных материалов, создающая уютный и стильный интерьер. Дизайнерские решения делают кухню функциональной и элегантной, придавая пространству оригинальный вид. Встроенная техника - холодильник, духовой шкаф, микроволновая печь, варочная панель.Индивидуальное отопление, вы сами управляете своими расходами и комфортомПроложены теплые полы под кафелем (ванной, прихожей)Лучшая шумо- и теплоизоляция, соседей совсем не слышно, что нынче роскошьКачественная электрика (несколько контуров освещения в комнатах, подсветки)Просторный санузел в кафелеСчетчики на газ, электричество, водуУдобная планировкаВ шаговой доступности гимназия и садики Вся мебель и техника - остается, заезжай и живи. Вас приятно порадуют низкие коммунальные платежи, в доме индивидуальное отопление. Богатая социальная и бытовая инфраструктура. В шаговой доступности: гимназия № 2, детские сады №№ 209, 10, Дошкольная академия , Маленькие академки ; детские и спортивные площадки, бассейн, спортивные секции, центры раннего развития - все, чтобы Ваши дети развивались в непосредственной близости, магазины, аптеки, пункты выдачи. Отличная транспортная доступность во все точки города. Соседи все спокойные, доброжелательные, семейные. Квартира юридически чистая, 1 собственник. Рассматриваем все формы расчета – наличные, ипотека, материнский капитал, сертификаты. Помощь в одобрении ипотеки и сопровождении сделки. Звоните за подробностями, организую показ в удобное для Вас время. Арт.

Читать полностью

    Для того, чтобы купить однокомнатную квартиру по адресу: Чебоксары, улица Академика РАН Х.М. Миначева, 17, позвоните по телефону +7 (937) 955-56-88. Торопитесь! Объявление №30091952699 о продаже однокомнатной квартиры опубликовано 21 ноября 2025.

    Позвонить Написать
    7 150 000 Р90 600 $ или 78 260
    Агент
    +7 (937) 955-56-88
    Начать чат с агентом
    Похожие предложения
    1-к кв. Чувашия, Чебоксары ул. Академика РАН Х.М. Миначева, 17 (41.9 ... - Фото 1
    1-к кв. Чувашия, Чебоксары ул. Академика РАН Х.М. Миначева, 17 (41.9 ... - Фото 2
    1-комнатная квартира, общая площадь 41м², жилая 21м², кухня 9м²

    Возможна ипотека под 12.99 на весь срок ОТЛИЧНОЕ ПРЕДЛОЖЕНИЕ Просторная однокомнатная квартира в тихом и спокойном микрорайоне Университет с дизайнерским ремонтом.Планировка:Общая площадь - 38.7 м2, с лоджией - 41.9 м2Комната - 21.1 м2Кухня - 9.90 м2Санузел...
    • 41 м²
    • 1-ком
    • 7/14 эт.
    7 150 000 Р
    Агент
    +7 (987) Показать номер
    Посмотреть контакты
    2-к кв. Чувашия, Чебоксары ул. Юрия Гагарина, 47к5 (51.0 м) - Фото 1
    2-к кв. Чувашия, Чебоксары ул. Юрия Гагарина, 47к5 (51.0 м) - Фото 2
    2-комнатная квартира, общая площадь 51м², жилая 26м², кухня 9м²

    Объект 8768. Мечтаете о современном жилье в Центре? Ваш шанс Создайте свой идеальный дом с нуля Продаётся светлая двухкомнатная квартира-распашонка с черновой отделкой в новом доме (2025г.). Вы сами выберете стиль, материалы и планировку — никакого дорогого...
    • 51 м²
    • 2-ком
    • 8/17 эт.
    7 200 000 Р
    Агент
    +7 (917) Показать номер
    Посмотреть контакты
    1-к кв. Чувашия, Чебоксары ул. Грасиса, 1 (44.1 м) - Фото 1
    1-к кв. Чувашия, Чебоксары ул. Грасиса, 1 (44.1 м) - Фото 2
    1-комнатная квартира, общая площадь 44м², жилая 20м², кухня 11м²

    В продаже 1 кк в кирпичном доме Квартира классической планировки с изолированными комнатами-Индивидуальное отопление-Кирпичный новый дом-Ремонт заехать и жить-Кухонный гарнитур со всей техникой-Стиральная машинкаРазвитый мкр, остановка 3 минЛицей 4 во...
    • 44 м²
    • 1-ком
    • 2/10 эт.
    • кирпичный
    7 200 000 Р
    Агент
    +7 (987) Показать номер
    Посмотреть контакты
    1-к кв. Чувашия, Чебоксары Ярмарочная ул., 16 (44.0 м) - Фото 1
    1-к кв. Чувашия, Чебоксары Ярмарочная ул., 16 (44.0 м) - Фото 2
    1-комнатная квартира, общая площадь 44м², жилая 15м², кухня 13м²

    Продаётся уютная однокомнатная квартира площадью 39.2 квадратных метров на пятнадцатом этаже шестнадцатиэтажного кирпичного дома новой постройки (2023 год) на улице Ярмарочной в Чебоксарах. Просторная кухня размером 13.5 квадратных метров станет вашим...
    • 44 м²
    • 1-ком
    • 15/16 эт.
    7 100 000 Р
    Агент
    +7 (919) Показать номер
    Посмотреть контакты
    2-к кв. Чувашия, Чебоксары ул. Академика В.Н.Челомея, 3 (66.0 м) - Фото 1
    2-к кв. Чувашия, Чебоксары ул. Академика В.Н.Челомея, 3 (66.0 м) - Фото 2
    2-комнатная квартира, общая площадь 66м², жилая 40м², кухня 8м²

    Объект 7901. Продаю двухкомнатную квартиру в Садовом микрорайоне.Тихий и благоустроенный район города, комфортная городская среда.Панельный дом, построенный в 2019 году — современное жилье с хорошими теплоизоляционными характеристиками.Автономное отопление-...
    • 66 м²
    • 2-ком
    • 1/9 эт.
    • панельный
    7 100 000 Р
    Агент
    +7 (917) Показать номер
    Посмотреть контакты

    Не нашли подходящего объявления?

    Оставьте заявку, и наши риэлторы подберут квартиру в районе Чебоксар

    (0)