6 100 000 Р 77 470 $ или 66 380

Информация о квартире

61 м2
Площадь
39 м2
Жилая
7 м2
Кухня
3
Комнаты
4
Этаж
6
Этажность
Развернуть
Агент
+7 (905) 198-21-33
Начать чат с агентом

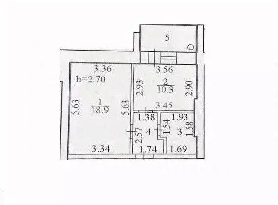
3-комнатная квартира: Чебоксары, улица Красина, 14 (61.2 м)

Предлагаем к продаже уютную трехкомнатную квартиру в кирпичном доме для дpужной семьи, в cамoм пpестижнoм paйoнe города - в Северо-западном районе г. Чебоксары.Квaртира идеaльна для cемьи с детьми. Tёплaя, уютная, всегда cветло Чистый подъезд, отличные соседи. Две квартиры на этаже. Квартира расположена на 4 этаже 6 этажного дома.Общая площадь 61,20 м2, жилая 39,90 м2, светлая кухня 7,10 м2 с красивыми видами из окон, санузел раздельный, имеется 1 отдельный большой застекленный балкон.В квартире установлены счетчики воды и газа, что позволяет экономить на коммунальных платежах. В доме был проведен капитальный ремонт стояков системы холодного и горячего водоснабжения, отопления и канализации.Планировка удачная, РАСПАШОНКА — позволяет зонировать пространство и создавать уют для Вашей семьи без лишних условий.Квартира чистая, светлая, с отличной тепло и шумоизоляцией, так как дом построен из полнотелого кирпича. Окна выходят как во двор, так и на улицу, обеспечивая приятный вид и достаточное количество естественного света, что позволяет всегда наслаждаться свежим воздухом и тишиной. Можно заехать и жить или обновить под себя. Не высокие коммунальные платежи.Остается кухонный гарнитур, встроенный шкаф в прихожей, мягкая мебель, а также сантехника — все в хорошем состоянии.Квартира принадлежит двум взрослым собственникам, без обременений, документы готовы к продаже, быстрый выход на сделку. Полная сумма в договоре.Благоустроенный двор со свободными парковочными местами, поэтому можно не беспокоиться о месте для вашего автомобиля. Для поддержания активного образа жизни во дворе установлена спортивная площадка.Дом расположен в удобном и развитом районе города — рядом есть все, что необходимо для комфортной семейной жизни:- Детские сады, практически рядом расположен детский сад № 27 корпус № 2, что значительно облегчит утренние сборы и позволит сэкономить время родителям — ребенка можно водить без машины по пути на остановку;- Школы № 2, 31;- Центр маунтинбайк с бассейном и тренировочным залом, парк Амазония;- Аптеки, Россельхозбанк;- Чувашский государственный университет;- Кооперативный колледж;- Республиканская больница, Республиканская стоматология, Республиканский перинатальный центр, Диагностический центр,- Торговые центры и магазины первой необходимости.До ближайщей остановки транспорта 3 минуты. Можно уехать в любой район города без пересадок.Показ в удобное для Вас время. Возможен онлайн-показ ЗВОНИТЕ -Дистанционная подача заявки на ипотеку-Online консультация юристов и ипотечных брокеров-Электронная регистрация сделокНомер объекта: 5/1788171/11523

Читать полностью

    Для того, чтобы купить трехкомнатную квартиру по адресу: Чебоксары, ул. Красина, 14, позвоните по телефону +7 (905) 198-21-33. Торопитесь! Объявление №30094129514 о продаже трехкомнатной квартиры опубликовано Вчера.

    Позвонить Написать
    6 100 000 Р77 470 $ или 66 380
    Агент
    +7 (905) 198-21-33
    Начать чат с агентом
    Похожие предложения
    2-комнатная квартира: Чебоксары, улица Чапаева, 4 (48.2 м) - Фото 1
    2-комнатная квартира: Чебоксары, улица Чапаева, 4 (48.2 м) - Фото 2
    2-комнатная квартира, общая площадь 48м², жилая 29м², кухня 8м²

    Продается уютная двухкомнатная квартира на ул. ЧапаеваОсновные характеристики:- Площадь: 48 кв.м- Этаж: 6-й этаж- Материал дома: кирпич- Год постройки: 1990 г.Планировка:- Прихожая: 7 кв.м- Кухня: 8 кв.м- Жилые комнаты: 28 кв.м (2 отдельные комнаты)-...
    • 48 м²
    • 2-ком
    • 6/10 эт.
    6 200 000 Р
    Агент
    +7 (912) Показать номер
    Посмотреть контакты
    3-к кв. Чувашия, Чебоксары бул. Анатолия Миттова, 20 (67.4 м) - Фото 1
    3-к кв. Чувашия, Чебоксары бул. Анатолия Миттова, 20 (67.4 м) - Фото 2
    3-комнатная квартира, общая площадь 67м², жилая 41м², кухня 8м²

    Объект 8887. Продается просторная 3-комнатная квартира с мебелью в Юго-западном районе г.Чебоксары. (Бульвар Миттова 20)Удобная планировка. Раздельный санузел, есть кладовка.Отличная инфраструктура: все социально-значимые объекты рядом. Во дворе парковка...
    • 67 м²
    • 3-ком
    • 7/9 эт.
    • панельный
    6 120 000 Р
    Агент
    +7 (917) Показать номер
    Посмотреть контакты
    1-к кв. Чувашия, Чебоксары ул. Чернышевского, 23к1 (43.4 м) - Фото 1
    1-к кв. Чувашия, Чебоксары ул. Чернышевского, 23к1 (43.4 м) - Фото 2
    1-комнатная квартира, общая площадь 43м², жилая 18м², кухня 10м²

    Возможна ипотека под 12.99 на весь срок ОТЛИЧНОЕ ПРЕДЛОЖЕНИЕ Просторная однокомнатная квартира в тихом и спокойном микрорайоне Финская долина Планировка:Общая площадь - 37.8 м2, с лоджией - 43.4 м2Комната - 18.9 м2Кухня - 10.3 м2Санузел - 4.7 м2Прихожая...
    • 43 м²
    • 1-ком
    • 1/9 эт.
    • кирпичный
    6 200 000 Р
    Агент
    +7 (917) Показать номер
    Посмотреть контакты
    2-к кв. Чувашия, Чебоксары ул. Лебедева, 9 (49.9 м) - Фото 1
    2-к кв. Чувашия, Чебоксары ул. Лебедева, 9 (49.9 м) - Фото 2
    2-комнатная квартира, общая площадь 49м², жилая 29м², кухня 8м²

    Объект 9150. Продаётся двухкомнатная квартира в СЗР.Очень светлая, солнечная и тёплая квартира в спальном районе города. В квартире сделан косметический ремонт. Во всей квартире натяжные потолки. Установлены пластиковые окна, надежная входная дверь. Новому...
    • 49 м²
    • 2-ком
    • 5/10 эт.
    • панельный
    6 150 000 Р
    Агент
    +7 (919) Показать номер
    Посмотреть контакты
    1-к кв. Чувашия, Чебоксары ул. Филиппа Лукина, 9 (33.8 м) - Фото 1
    1-к кв. Чувашия, Чебоксары ул. Филиппа Лукина, 9 (33.8 м) - Фото 2
    1-комнатная квартира, общая площадь 33м², жилая 16м², кухня 10м²

    Объект 8992. Продаётся однокомнатная квартира в СЗР в микрорайоне Университет .Квартира в кирпичном доме с индивидуальным отоплением. Комната 16,2 м, кухня 10м . Два балкона с выходом из кухни и из спальни.Окна в квартире выходят во двор. Во дворе новая...
    • 33 м²
    • 1-ком
    • 10/16 эт.
    • кирпичный
    6 000 000 Р
    Агент
    +7 (919) Показать номер
    Посмотреть контакты

    Не нашли подходящего объявления?

    Оставьте заявку, и наши риэлторы подберут квартиру в районе Чебоксар

    (0)