Реализация объекта недвижимости приостановлена

Информация об помещении

1
Этаж

Состояние и оснащение

Количество этажей
1
Развернуть

Помещение свободного назначения в Чувашия, Чебоксары Пролетарская ул., ...

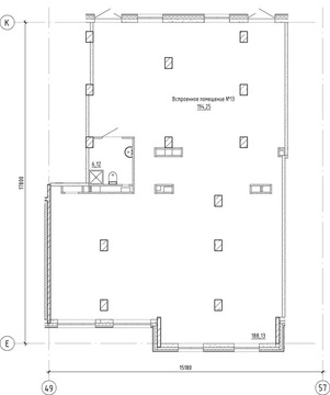
Продается встроенно-пристроенное помещение с действующими арендаторами (готовый бизнес). Якорные арендаторы — магазины БРИСТОЛЬ , САНАР (сеть магазинов от Вурнарского мясокомбината. РАСПОЛОЖЕНИЕ ОБЪЕКТА: 1 линия Расположен в районе на оживленном перекрестке. Высокий автомобильный и пешеходный трафик. Развитая инфраструктура. В шаговой доступности находятся остановки общественного транспорта, жилые многоквартирные дома, детские сада, школы, больница. ХАРАКТЕРИСТИКА ОБЪЕКТА:ОБЩАЯ ПЛОЩАДЬ помещений — 397,5 кв.м:1 этаж — 117, 7 кв.м (Бристоль и Санар)Цокольный этаж — 279,8 кв.м (размещаются действующая сауна и кафе). Центральное отопление (собственный тепловой узел), центральное водоснабжение, канализация. Несколько отдельных входных групп. Договоры со всеми поставщиками коммунальных услуг заключены напрямую. Есть согласованная разгрузочно-погрузочная зона. Продажа от физического лица Все дополнительные вопросы — по телефону Звоните Арт.

Читать полностью

    Реализация объекта недвижимости приостановлена

    Не нашли подходящего объявления?

    Оставьте заявку, и наши риэлторы подберут псн в районе Чебоксар

    (0)