25 200 Р 311 $ или 270

Информация об помещении

1
Этаж

Состояние и оснащение

Количество этажей
14
Развернуть
Агент
+7 (987) 760-15-76
Начать чат с агентом

Помещение свободного назначения в Чувашия, Чебоксары ул. Правая ...

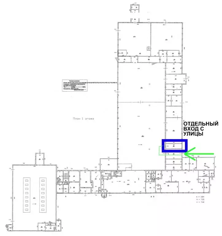
Сдается в аренду помещение площадью 36 кв.м, расположенное на первом этаже жилого многоквартирного дома. Спальный район города. Отдельный вход с улицы. Отдельная входная группа. Косметический ремонт. В настоящее время расположен продуктовый магазин. РАСПОЛOЖEНИЕ OБЪЕKTA: спальный район города. Хорошая транспортная развязка. Поблизости расположены многоквартирные дома, офисы, остановки общественного транспорта.ХАРАКТЕРИСТИКА ОБЪЕКТА:Общая площадь - 36 кв.м.Помещение расположено на 1 этаже многоквартирного жилого дома. Отдельный вход с улицы.Свой санузел. Установлен кондиционер. КОММУНИКАЦИИ:Автономное отопление, подведены системы центрального водоснабжения, электроснабжения, канализация.Подходит под размещение офиса, пункта выдачи заказов ПВЗ, магазина. Все дополнительные вопросы — по телефону Звоните Арт.

Читать полностью
    Позвонить Написать
    25 200 Р311 $ или 270
    Агент
    +7 (987) 760-15-76
    Начать чат с агентом
    Похожие предложения
    Помещение свободного назначения в Чувашия, Чебоксары Ярославская ул., ... - Фото 1
    Помещение свободного назначения в Чувашия, Чебоксары Ярославская ул., ... - Фото 2
    Данные получены с сайта ГИС Торги.Нежилое помещение 2, общей площадью 51,9 кв. м, расположенное в подвале жилого четырехэтажного кирпичного дома, находящиеся по адресу: г. Чебоксары, Ярославская, д. 58
    • 5 этажей
    24 688 Р
    Агент
    +7 (987) Показать номер
    Посмотреть контакты
    Аренда ПСН площадью 21.1 м2 - Фото 1
    Аренда ПСН площадью 21.1 м2 - Фото 2
    Аренда ПСН площадью 21.1 м2 - Фото 3
    Аренда ПСН площадью 21.1 м2 - Фото 4
    Аренда ПСН площадью 21.1 м2 - Фото 5
    Аренда ПСН площадью 21.1 м2 - Фото 6
    Аренда ПСН площадью 21.1 м2 - Фото 7
    Аренда ПСН площадью 21.1 м2 - Фото 8
    Аренда ПСН площадью 21.1 м2 - Фото 9
    Аренда ПСН площадью 21.1 м2 - Фото 10
    Аренда ПСН площадью 21.1 м2 - Фото 11
    полезная площадь 21.1м²

    ЖК «Москвичка» от «Гранель» - это современный жилой комплекс комфорт-класса, который находится в Новой Москве, в 5 км от МКАД. Благодаря тому, что всего в 300 метрах от комплекса построена новая станция метро «Новомосковская» («Коммунарка») , жители микрорайона...
    • 21.1 м²
    • 1/17 эт.
    43 260 Р /в месяц
    Агент
    +7 (495) Показать номер
    Посмотреть контакты
    Аренда ПСН площадью 92.8 м2 - Фото 1
    Аренда ПСН площадью 92.8 м2 - Фото 2
    Аренда ПСН площадью 92.8 м2 - Фото 3
    Аренда ПСН площадью 92.8 м2 - Фото 4
    полезная площадь 92.8м²

    «Микрорайон Гагаринский» - уже построенный и сданный жилой комплекс, который расположен в непосредственной близости к городу Балашиха, в 7 км от МКАД по Щелковскому шоссе. Жители комплекса «Микрорайон Гагаринский» уже пользуются развитой инфраструктурой:...
    • 92.8 м²
    • 1/25 эт.
    194 900 Р /в месяц
    Агент
    +7 (495) Показать номер
    Посмотреть контакты
    Аренда ПСН площадью 63.9 м2 - Фото 1
    Аренда ПСН площадью 63.9 м2 - Фото 2
    Аренда ПСН площадью 63.9 м2 - Фото 3
    Аренда ПСН площадью 63.9 м2 - Фото 4
    Аренда ПСН площадью 63.9 м2 - Фото 5
    Аренда ПСН площадью 63.9 м2 - Фото 6
    Аренда ПСН площадью 63.9 м2 - Фото 7
    Аренда ПСН площадью 63.9 м2 - Фото 8
    Аренда ПСН площадью 63.9 м2 - Фото 9
    Аренда ПСН площадью 63.9 м2 - Фото 10
    Аренда ПСН площадью 63.9 м2 - Фото 11
    полезная площадь 63.9м²

    Сдается в аренду коммерческое помещение площадью 63,9 кв. м на втором этаже ТЦ «Аструм-Видное». Условия аренды: помещение предоставляется без посредников, напрямую от собственника - компании «Аструм Недвижимость», которая управляет коммерческой инфраструктурой...
    • 63.9 м²
    • 2/2 эт.
    134 200 Р /в месяц
    Агент
    +7 (495) Показать номер
    Посмотреть контакты
    Аренда ПСН площадью 91.6 м2 - Фото 1
    Аренда ПСН площадью 91.6 м2 - Фото 2
    полезная площадь 91.6м²

    Мы - собственник коммерческой недвижимости ГК «ЭКООФИС»! Прямая аренда от собственника ГК "Экоофис"! Сдаем помещение 91,6 кв.м. в ТЦ "Мебель", 2 мин. м. Электрозаводская, вблизи ТТК и Садового кольца. Расположено на 1/2 этаж. здания. Планировка: зал,...
    • 91.6 м²
    • 1/2 эт.
    190 000 Р /в месяц
    Агент
    +7 (495) Показать номер
    Посмотреть контакты

    Не нашли подходящего объявления?

    Оставьте заявку, и наши риэлторы подберут псн в районе Чебоксар

    (0)