Реализация объекта недвижимости приостановлена

Информация о квартире

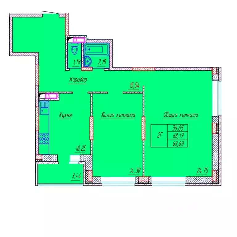
70.0 м2
Площадь
39.0 м2
Жилая
10.0 м2
Кухня
2
Комнаты
7
Этаж
16
Этажность
Развернуть

2-к кв. Чувашия, Новочебоксарск бул. Речной, 6 (70.8 м)

Отличное планировочное решение двухкомнатной квартиры.Каждая планировка продумана так, что большая жилая комната, имеющая 2 окна, легко позволит вам по вашему желанию и фантазии превратить её в трехкомнатную. Или возможно вы захотите сделать шикарную кухню-гостиную и две жилых комнаты. Всё в ваших руках Позиция 5 - одно подъездный 16-этажный монолитно-каркасный дом в кирпичном исполнении, с техническим подпольем, техническим чердаком, без мусоропровода, с крышной котельной, оборудованный пассажирским и грузовым лифтами.

Читать полностью

    Реализация объекта недвижимости приостановлена

    Не нашли подходящего объявления?

    Оставьте заявку, и наши риэлторы подберут квартиру в новостройке в районе Новочебоксарска

    (0)