Россия, Чувашская Республика - Чувашия, Новочебоксарск, ул. Воинов-интернационалистов, поз6

Реализация объекта недвижимости приостановлена

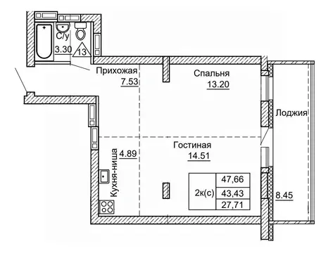
Информация о квартире

78.0 м2
Площадь
3
Комнаты
12
Этаж
18
Этажность
Развернуть

3-к кв. Чувашия, Новочебоксарск ул. Воинов-интернационалистов, поз6 ...

- Позиция 6 представляет собой ОДНОподъездный 18-этажный дом.- Вход в подъезд со стороны Волги.- Расположение сторон света на листовке с планировками показывает компас.- Наружное исполнение дома: монолитный каркас, стены из кирпича.- Межквартирные перегородки керамзитобетонные блоки 190 см.- Межкомнатные перегородки пазогребневые блоки 80 и 100 см.- В доме 3 лифта (один пассажирский, два грузопассажирские).- На каждом этаже расположено по 8 квартир- На первом этаже также располагаются квартиры, нежилых (коммерческих) помещений нет.- Отделка квартир: штукатурка стен, цементная стяжка полов, счетчики, телефон, интернет, домофон.- Отопление централизованное с поквартирным учетом, радиаторы отопления и счетчики застройщиком устанавливаются.- Электрическая разводка проведена, счетчик электричества застройщиком устанавливается.- Окна из ПВХ профиля с двухкамерным стеклопакетом.- Входная дверь простая, деревянная временная.- Разрешение на строительство объекта действует до 21 июня 2026 года.- Официальный планируемый Застройщиком срок сдачи 2 квартал 2026 года.- Оплата на ЭСКРОУ счета в ПАО Сбербанк принимаем как собственные средства, так и собственные с кредитными средствами любого кредитующего Вас банка.- Квартирный состав дома:1к. кв. 42 кв.м. и 46 кв.м., 2х. кв. 62 кв.м., 63 кв.м. и 64 кв.м., 3х. кв. 85 кв.м., 79 кв.м. и 103 кв.м.

Читать полностью

    Реализация объекта недвижимости приостановлена

    Не нашли подходящего объявления?

    Оставьте заявку, и наши риэлторы подберут квартиру в новостройке в районе Новочебоксарска

    (0)