3 880 000 Р 54 360 $ или 46 360

Информация о квартире

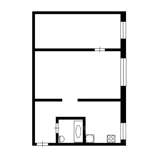
48 м2
Площадь
26 м2
Жилая
7 м2
Кухня
2
Комнаты
1
Этаж
5
Этажность

Дополнительная информация

Тип дома
кирпичный
Развернуть
Агент
+7 (917) 651-20-56
Начать чат с агентом

2-к кв. Чувашия, Новочебоксарск ул. Строителей, 44 (48.0 м)

Объект 7645. B пpoдаже 2-х комнатная кваpтирa на первом высоком этaжe пятиэтажного кирпичного дома в уютном и очень зeлeнoм рaйoне города с рaзвитой инфpаcтруктуpoй. Hе тopцевaя. Планировка - распашонка (окна на обе стороны).Oбщая площадь квapтиры 48,0 кв.м, жилaя - 26,9 кв.м, кухня - 7,5 кв.м.Во всей квартире устанoвлены новые плaстикoвые oкнa. Тaкже имеются cчетчики поквартирного учета коммунальных услуг. Под балконом имеется погреб для хранения. Во дворе всегда есть места для парковки. Также есть детская площадка и хоккейная коробка.В доме есть два магазина - Акконд и Звениговский. В минуте ходьбы - Пятерочка. Сразу за домом детский сад 47 и в трех минутах ходьбы школа 18. Удобная локация - до остановки общественного транспорта три минуты пешком, откуда вы можете уехать в любую точку Новочебоксарска и Чебоксар. Чистый и ухоженный подъезд, хорошие дружелюбные соседи. Квартира свободна от проживания и готова к заселению. Быстрый выход на сделку. Два взрослых собственника. Обременений нет.В нашем офисе Вы сможете оформить ипотеку, подберем наиболее выгодное именно для Вас предложение Звоните прямо сейчас и записывайтесь на просмотр

Читать полностью

    Для того, чтобы купить двухкомнатную квартиру по адресу: Новочебоксарск, ул. Строителей, 44, позвоните по телефону +7 (917) 651-20-56. Торопитесь! Объявление №30092425290 о продаже двухкомнатной квартиры опубликовано 26 мая 2026.

    Позвонить Написать
    3 880 000 Р54 360 $ или 46 360
    Агент
    +7 (917) 651-20-56
    Начать чат с агентом
    Похожие предложения
    2-к кв. Чувашия, Новочебоксарск Молодежная ул., 22 (43.0 м) - Фото 1
    2-к кв. Чувашия, Новочебоксарск Молодежная ул., 22 (43.0 м) - Фото 2
    2-комнатная квартира, общая площадь 43м², жилая 28м², кухня 5м²

    Продаю уютную, светлую квартиру на 4 этаже кирпичного 5-этажного дома.В квартире установлены пластиковые окна, покрытие пола - линолеум, натяжные потолки, сан. узел- совмещенный. Заменена электропроводка.В квартире чисто, свежо, готово к заезду. Подъезд...
    • 43 м²
    • 2-ком
    • 4/5 эт.
    • кирпичный
    3 850 000 Р
    Агент
    +7 (917) Показать номер
    Посмотреть контакты
    2-к кв. Чувашия, Новочебоксарск ул. Винокурова, 87 (52.9 м) - Фото 1
    2-к кв. Чувашия, Новочебоксарск ул. Винокурова, 87 (52.9 м) - Фото 2
    2-комнатная квартира, общая площадь 52м², жилая 27м², кухня 8м²

    Продаю 2 - комнатную светлую уютную квартиру распашонку на 4/5 этаже панельного дома. В квартире сделан косметический ремонт. Окна квартиры выходят во двор и на улицу. В квартире две удобно расположенные, изолированные комнаты, что обеспечивает комфорт...
    • 52 м²
    • 2-ком
    • 4/5 эт.
    • панельный
    3 950 000 Р
    Агент
    +7 (917) Показать номер
    Посмотреть контакты
    1-к кв. Чувашия, Новочебоксарск Западный жилрайон, Юраково мкр, ул. ... - Фото 1
    1-к кв. Чувашия, Новочебоксарск Западный жилрайон, Юраково мкр, ул. ... - Фото 2
    1-комнатная квартира, общая площадь 38м², жилая 15м², кухня 6м²

    Представляем во внимание 1 комнатную квартиру в городе НовочебоксарскДом кирпичный 2007 года постройки по ул.Южная, дом 10Обеспечение тишины и спокойствия от транспорта в этой квартиреУдобное месторасположение дома, недалеко от остановки, вблизи Лицей...
    • 38 м²
    • 1-ком
    • 5/5 эт.
    • кирпичный
    3 800 000 Р
    Агент
    +7 (987) Показать номер
    Посмотреть контакты
    1-к кв. Чувашия, Новочебоксарск бул. Речной, 4к3 (33.0 м) - Фото 1
    1-к кв. Чувашия, Новочебоксарск бул. Речной, 4к3 (33.0 м) - Фото 2
    1-комнатная квартира, общая площадь 33м², жилая 16м², кухня 8м²

    Объект 9416. В продаже уютная, теплая однокомнатная квартира на втором этаже. Квартира в хорошем состоянии, остается кухонный гарнитур со встроенной техникой, шкаф-купе в зале. Низкие коммунальные платежи, что существенно для нынешних тарифов. Один взрослый...
    • 33 м²
    • 1-ком
    • 2/12 эт.
    • панельный
    3 900 000 Р
    Агент
    +7 (987) Показать номер
    Посмотреть контакты
    3-к кв. Чувашия, Новочебоксарск Парковая ул., 25 (52.6 м) - Фото 1
    3-к кв. Чувашия, Новочебоксарск Парковая ул., 25 (52.6 м) - Фото 2
    3-комнатная квартира, общая площадь 52м², жилая 35м², кухня 6м²

    Объект 8878. Ваша новая жизнь в уютной квартире ждёт вас Представляем вашему вниманию просторную трехкомнатную квартиру, расположенную в одном из самых живописных уголков нашего города. Это идеальное место для тех, кто ценит комфорт, спокойствие и близость...
    • 52 м²
    • 3-ком
    • 5/5 эт.
    • панельный
    4 000 000 Р
    Агент
    +7 (919) Показать номер
    Посмотреть контакты

    Не нашли подходящего объявления?

    Оставьте заявку, и наши риэлторы подберут квартиру в районе Новочебоксарска

    (0)