Реализация объекта недвижимости приостановлена

Информация о квартире

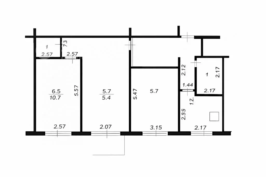
56.0 м2
Площадь
38.0 м2
Жилая
5.0 м2
Кухня
3
Комнаты
2
Этаж
5
Этажность
Развернуть

3-комнатная квартира: Новочебоксарск, Советская улица, 28 (56.5 м)

Продается 3- комнатная квартира, расположенная в тихом, спокойном районе с развитой инфраструктурой, по адресу: ул. Советская д.28, на 2/5 этаже панельного дома, общей площадью 56,5 м2. Чистый подъезд, хорошие соседи. Во дворе оборудована детская площадка, растут кустарники и деревья, есть места для парковок. Вся инфраструктура для комфортной жизни находится в шаговой доступности. Быстрый выход на сделку. Одобрение ипотеки с гарантией результата. Юридическое сопровождение сделки. Звоните, ответим на все интересующие Вас вопросы Арт.

Читать полностью

    Реализация объекта недвижимости приостановлена

    Не нашли подходящего объявления?

    Оставьте заявку, и наши риэлторы подберут квартиру в районе Новочебоксарска

    (0)